产品分类
超声波淤泥界面仪菜单简易设置操作说明



本公司生产的超声波淤泥界面仪、超声波泥位计,使用全中文的菜单,进行简易的设置,就能满足客户不同的需求。正常情况下,按照说明书的安装要求,安装好设备后,只需要设置以下几个参数,设备就可以正常使用了。
◇进入菜单项 ◇移动光标
◇确认菜单项 ◇选择菜单项
◇确认参数修改 ◇参数修改

附图1.1 水深测量示意图 附图1.2 泥位测量示意图
|
功 能 |
分体型 |
|
量 程 |
常规量程是5米、10米、15米、20米 可以定做30米、40米、50米、60米、70米等特殊量程 |
|
测量精度 |
1%~3% |
|
分辨率 |
5mm或0.5%(取大者) |
|
显 示 |
中文液晶显示 |
|
模拟输出 |
4~20mA/750Ω负载 |
|
继电器 输 出 |
单通道为2组 AC 250V/ 8A或DC 30V/ 5A 状态可编程 |
|
供 电 |
标配220V AC+15% 50Hz 可选24VDC 120mA 定做12VDC或电池供电 |
|
环境温度 |
显示仪表-20~+60℃, 探头-20~+80℃ |
|
通 信 |
可选485,232通信(厂家协议) |
|
防护等级 |
显示仪表IP65,探头IP68 |
|
探头电缆 |
可达100米,标配10米 |
|
探头安装 |
根据量程和探头的选型 |
|
产品功耗 |
用24V电源供电,不带继电器功耗是100mA,带一个继电器是要120mA,2路继电器145mA,3路继电器要170mA,4路继电器要190mA. 具体功率如下: 无继电器是24×100mA=2.4W; 1路继电器是24×120mA=2.9W;2路继电器是24×145mA=3.5W; 3路继电器是24×170mA=4.1W;2路继电器是24×190mA=4.6W; |
|
*大量程 |
离壁距离 |
*大量程 |
离壁距离 |
*大量程 |
离壁距离 |
|
5米 |
0.5米 |
10米 |
1.0米 |
15米 |
1.5米 |
|
*大量程 |
离壁距离 |
*大量程 |
离壁距离 |
*大量程 |
离壁距离 |
|
20米 |
2米 |
30米 |
3米 |
40米 |
4米 |
2.50KHz的超声波探头
|
*大量程 |
离壁距离 |
*大量程 |
离壁距离 |
*大量程 |
离壁距离 |
|
5米 |
1米 |
10米 |
2米 |
15米 |
3米 |
|
*大量程 |
离壁距离 |
*大量程 |
离壁距离 |
*大量程 |
离壁距离 |
|
20米 |
4米 |
30米 |
5米 |
40米 |
6米 |
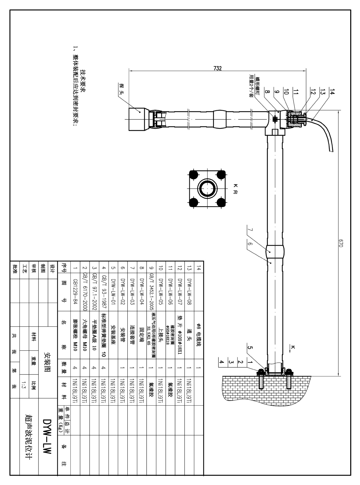
4.1.2淤泥界面仪选配安装支架尺寸图和安装图
超声波淤泥界面仪安装支架属于选配件。

4.2淤泥界面仪安装尺寸
⑴本系列分体型超声波淤泥界面仪显示仪表外形图

超声波淤泥界面仪
(2)本系列分体型超声波淤泥界面仪显示仪表尺寸图

超声波淤泥界面仪
(3)本系列分体型超声波淤泥界面仪探头尺寸图

4.3电气接线图
(1)超声波淤泥界面仪电气连接图:

◆淤泥界面仪接线端子示意图


六、菜单界面及操作说明:
① 在运行模式界面按Set键进入选择菜单界面:

再按SET键选择“1专家模式”进入一级菜单。
② 一级菜单各项说明:
◆参数没有被锁定的一级菜单界面:

◆参数锁定的一级菜单界面
◆“0结束设置”
当选择此项时,按Set键将退回到运行模式界面。

◆“1 不锁定”
菜单不锁定,允许别人改动。
◆“2 全局锁定”
菜单上锁,当你的参数设置好,不希望别人随意改动,把菜单上锁,这样就要输入密码才能解锁进行菜单操作。本流量计的初始密码为25,用户可以修改初始密码任意设置自己的密码(特别提醒请记住自己设置的密码,如若忘记应与厂家联系)。
不锁定:不锁定,那将所有的菜单都可以随意修改。
全局锁定:全局锁定后,必须输入密码才能修改。

★当参数被锁定时,按Set键进入参数锁定的解锁界面:

◆“2量程设置”
设置参考零点、量程高点、量程低点、显示单位。
参考零点:设置淤泥界面仪参考零点,这个主要是物位测量的时候才有意义;出厂设置默认*大量程。
量程低点:设置淤泥界面仪4mA对应输出的测量值;出厂设置默认为0。
量程高点:设置淤泥界面仪20mA对应输出的测量置;出厂设置默认为*大量程。
显示单位:有m、cm、mm三种单位可以选择,m: 以米显示,cm: 以厘米显示,mm: 以毫米显示,出厂设置默认为cm。


◆“4探头设置”(这项参数请不要修改)
选择探头及设置相关参数。
探头选择:有1~9共九项可以选择。根据探头上的标签选择,出厂设置默认为5。
盲区设置:设置探头的近端盲区,出厂设置默认为0.30。

◆“5算法选择”(这项参数请不要修改)
算法选择:有特殊环境一、特殊环境二、特殊环境三、特殊环境四、特殊环境五、特殊环境六、特殊环境七,共七项可以选择。出厂设置默认为特殊环境七。


◆“7参数校正”(这项参数请不要修改)
进行量程校正、声速校正、电流输出校正、参考电平校正操作。
量程校正:输入实际值,系统自动进行量程校正。出厂设置默认为测量值。
声速校正:输入实际值,系统自动进行声速校正,运用在液体不是水的场合。例如:在汽油、丙酮、酒精等液体的场合,声音在这些液体中的传播速度不一样,需要校正。
4mA校正:修改值,直到实际输出电流为4mA为止。出厂设置默认为3100。
20mA校正:修改值,直到实际输出电流为20mA为止。出厂设置默认为7200。
参考电平:输入相应测试点测得的电压值。出厂设置默认为5.00。

◆“8通信设置”
通讯地址:选择通讯的地址,默认值为1。(在使用485通讯的时候,同一条485总线上的设备,必须设置为不同的地址,如果有相同的地址,就会使这两个相同地址的设备的数据无法上传。)
波特率:选择通讯的频率,有2400、4800、9600、19200可选,默认值为9600.

◆“9复位选择”
出厂复位:是:恢复到刚出厂设置的状态。否: 退出。出厂设置默认为否。系统复位:是:恢复系统设置。否:退出。出厂设置默认为否。

七、错误现象及处理
|
现象 |
原因 |
解决办法 |
|
淤泥界面仪 不工作 |
电源未接好 |
检查电源线 |
|
淤泥界面仪工作,屏幕显示小喇叭符号没有变化,如图“”则是系统进入丢波状态 |
1.被测距离超出淤泥界面仪量程 |
1.考虑更换长量程的淤泥界面仪 |
|
2.被测介质有强烈扰动,振动或者泡沫严重。 |
2.等待被测介质恢复平静后,设备会自动恢复正常测量 |
|
|
3.周边有变频器、电动机等强干扰源
|
3.检查周边环境,做好电磁屏蔽。不可与变频器、电动机用同一个电源,还要可靠接地。 仪表的进线和出现不可跟变频器、电动机同一个线槽,或者单独用镀锌管穿管保护。 |
|
4.探头未对准被测泥面。 |
4.重新安装探头,垂直于泥面。 |
|
5.被测空间内有多余物体,比如垃圾等等 |
5.重新选择合适的安装位置,尽量避免干扰物出现。 |
|
6.泥位进入盲区。 |
6.抬高探头安装位置,或者将派泥位置改低。 |
|
7.被测液体含有泡沫、紊流或者泥沙含量大。 |
7.排除泡沫咨询生产商。
|
|
8.没有回波 |
8.探头倾斜了,没有对准目标 |
|
9.被测距离没有超过淤泥界面仪量程,但是收不到回波信号。 |
9.可以选用低频的探头来测量。 |
- 上一条:深度解析:超声波流量计的使用故障
- 下一条:正确选购超声波流量计


苏公网安备 32080402000195号